

Location | Munich Freiham |
---|---|
Area | GF 17.300 sqm |
Client | Wohnbaugenossenschaft wagnis eG |
Date | 2018 |
Project Team | Ina-Maria Schmidbauer, Patrick von Ridder, Peter Scheller, Dorian Cani, Björn Swedjemark |
Following the design idea of the Dutch office West 8, Freiham was initially conceived out of the urban green spaces as a kind of condensed garden city. The large, tree-lined avenue, together with the transverse park strips and the green spaces, structure the district. Open building blocks are occupied with different typologies and with east-west running path relationships they determine the urban character. Towards the main road, a closed development is planned. But here, too, the building line points to the authors' desire for a varied street façade composed of individual buildings.
The term "together", which seems elementary to us for the self-image of wagnis, should continue to accompany us through the development of the concept. In this neighbourhood, the wagnis cooperative should and can be an important partner. The Gebosssen are the residents of an integrative building block that mediates in the neighbourhood as - an urban project of the many. A continuous (in)unity is being created. An arrangement of possibilities, of different qualities and locations is to characterise the urban space. These locations determine the neighbourhoods described and also our interpretation of the urban design. The three-storey building block defined in the interior of the perimeter spatially separates two different subspaces and becomes the centre of the considerations.
In the south, a lively piazetta is created by defining the public passageway. Common cooking and eating, brewing and drinking, roasting, tinkering, repairing, programming, selling and buying define the space. To the north, the enclosed garden courtyard with its surrounding pergola is reminiscent of a "hortus conculusus". As a place of rest, of production, of slowness, of becoming and growing, it is a garden space for all. Wilderness and order are negotiated: Tree, flower and beet come equally into their own. In between, on the roof of the market hall building, there is an orangery, a collective winter garden.
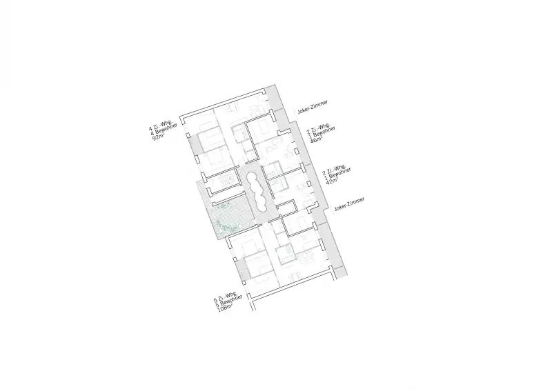
The houses are arranged according to different qualities and atmospheres of the urban space. The buildings surround the new quarter: townhouses alternate with courtyard houses, places of production with flats and roof gardens. One enters all the houses from the street. The flats are reached via a spacious two-storey hall. These halls form the entrance and spatially complement the two-storey "garden rooms" of the houses. A spatial interweaving of the house community is created. The ground floor is divided into two floors, allowing for a wide range of flat sizes.
Around the garden, on the first floor, garden cluster flats are created, a networkable house community. The guest flats can also be integrated into this spatial network. The individual houses can be read as individual addresses along Aubinger Allee. The shelf-like design of the façades with flexible fillings of windows and exits creates a certain constancy in the lively variety. The two-storey garden rooms are oriented to the southwest and additionally structure the façade.